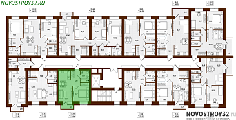
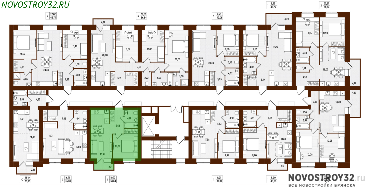
1-комнатная квартира, 38.84 м2

Брянск, Советский район, ул. Р.Брянского

Где купить квартиру

+7(4832)321-420

Адрес: Брянск, ул.Бежицкая д.1, корп.11

Задать вопрос
4 932 680 руб.
127 000 руб/м2

Площадь .......................... 38.84 м2

Этаж ............................. 2-7

Этажей ............................. 9

Отделка .............................. без отделки

Тип здания .............................. кирпичное

Санузел .......................... совмещённый

Застройщик .......................... Надежда

Срок сдачи ............................. 4 квартал 2027

Ипотека .......................... да

Показать объект на карте

Информация о ЖК "Д.О.М."

«Д.О.М.» — жилой комплекс, где современная архитектура органично сочетается с традициями кирпичного домостроения

Другие квартиры в этом доме

Кол-во комнат Площадь2) Этаж Цена за м2 от (руб.) Общая (руб.)
Кол-во комнат Площадь2) Этаж Цена за м2 от (руб.) Общая (руб.)
1-комнатная 31.52 3-9 122500122 500 38612003 861 200
1-комнатная 37.01 2-9 125000125 000 46262504 626 250
1-комнатная 37.51 2-5 123500123 500 46324854 632 485
1-комнатная 38.55 2-3 123000123 000 47416504 741 650
1-комнатная 44.39 2-9 126500126 500 56153355 615 335
1-комнатная 48.79 3-6 122500122 500 59767755 976 775
2-комнатная 56.32 5-9 119500119 500 67302406 730 240
2-комнатная 58.42 3-7 119500119 500 69811906 981 190
2-комнатная 69.06 3-8 120000120 000 82872008 287 200
3-комнатная 86.84 4-9 120000120 000 1042080010 420 800